木質防火門
木質防火門
鋼質防火門
鋼質防火門
配件
配件
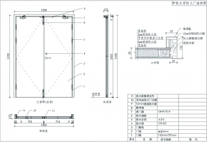
防火門結構圖
防火門結構圖
滿足不同場所需要
技術力量歷史悠久
生產設備先進
杭州名牌產品
在國內市場內享有很高聲譽
About Us
浙江燈塔防火新材料科技有限公司
浙江燈塔防火新材料科技有限公司現位于浙江省德清縣雷甸鎮工業開發區內,占地面積13500平方米,建筑面積10000平方米,是專業生產鋼質防火門、鋼木質防火門、木質防火門廠家。產品前身為杭州燈塔防火材料有限公司,成立于1988年,是國內第一家生產木質防火的廠家。

杭州東站
北京陽光廣場
奧體中心
連線行業前沿資訊
防火門能否能安裝智能鎖
2023-08-23
防火門能否安裝智能鎖: 根據國家規定所有六層以上的住宅樓如果沒有防火隔離區則入戶門都需要是防火門,所以說入戶門是防火門是很正常的一件事情。無論是進口的入戶門還是國產的入戶門,都可以安裝。
防火門的防火效果,不僅取決于內部填充的防火材質,還和安裝的好壞由很大的關系。安裝的時候有很多細節應該注意,否則達不到應有的防火保溫能力。
當遇到火災時如何正確的使用防火門
1、防火門在發生火災的時候,是不可以進行手動關閉,需要設置自動閉門器,防火門是自動關閉的,防火門設置的時候,避免將自動閉門器裝在受火面的一邊,火災發生時容易造成損壞。
企業相冊
客服2
客服1